RU:Relation:enforcement
![]() |
| Описание |
|---|
| Устройства измеряющие и фиксирующие нарушения ПДД и их зона покрытия |
| Группа: ограничения |
| Участники |
|
|
| Смотри также |
| Статус: одобрено |
| Инструменты |
Это отношение обозначает различные типы устройств, которые измеряют и фиксируют нарушения ПДД, такие как:
- Стационарный радар скорости
- Камера фиксирующая проезд на красный свет светофора.
- Фиксирующая дистанцию между транспортными средствами
- Проверка массы автомоблия (для тяжелых транспортных средств)
- Обычные места "засады" сотрудников ГИБД (радар, проверка документов, и др)
Эти устройства принадлежат к одному классу объектов и должны использовать одну схему обозначения с различными значениями. Иногда требуется сочетание значений, если устройство выполняет более одной функции (например, радар скорости и фиксация проезда на красный свет в одном устройстве).
Где обозначать?
Везде, где законодательство страны не запрещает обозначать устройства контроля скорости. Если предоставление, отображение или предупреждение об устройствах контроля в стране запрещено в программном обеспечение, то вы можете добавить информацию в базу - программное обеспечение обязано следовать закону. Поэтому, в программе навигации анализ устройств контроля скорости должен быть реализован как плагин или отключаемая функция.
Теги
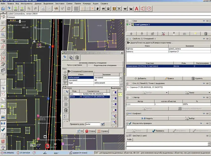
Создавайте отношение для каждого устройства, так как они могут следить за разными направлениями и параметрами.
| Ключ | Значение | Пример | Пояснение |
|---|---|---|---|
| type | enforcement | enforcement | Тип отношения. |
| enforcement | maxheight / maxweight / maxspeed / mindistance / traffic_signals / check / access / road_marking | maxheight | Какие нарушения контролирует камера: максимальная высота / максимальный вес / максимальная скорость / минимальная дистанция / светофоры / посты или пункты контроля / доступ (например, на выделенную полосу для общественного транспорта) / контроль соблюдения разметки. |
| maxheight | <Число> указать единицы измерения, если не в метрах | 4 | Максимальная высота (Указывать только при enforcement=maxheight) |
| maxweight | <Число> указать единицы измерения, если не в тоннах | 16 | Максимальный вес (Указывать только при enforcement=maxweight) |
| maxspeed | <Число> указать единицы измерения, если не в км/ч | 60 | Максимальная скорость (Указывать только при enforcement=maxspeed) |
| maxwidth | <Число> указать единицы измерения, если не в метрах | 4 | Максимальная ширина (Указывать только при enforcement=maxwidth) |
| mindistance | <Число> указать единицы измерения, если не в метрах | 80 | Минимальная дистанция между автомобилей (Указывать только при enforcement=mindistance) |
Участники
| Элемент | Роль | Количество участников | Пояснение |
|---|---|---|---|
| device | Один или несколько | Место расположения устройства. Для большого устройства (например для грузовиков), линия или область предпочтительнее(but must be connected to the same way). Может находиться как на линии, так и рядом с ней. | |
| from | Один или несколько | Узел, откуда действует устройство. Если есть знак, обозначается место установки знака, если нет никаких признаков, то надо оценить расстояние, на котором водитель должны быть предупреждён, если идет с разрешённой скоростью. | |
| to | Один или несколько (в некоторых случаях) | Конец ограничения.
| |
| force | Один или несколько — необязательный | Светофор или барьер, который мешает вам, в случае несоблюдения ПДД (потому что это опасно). |
Примеры
Примеры есть на странице предложения
Скрин из редактора
